
HGE28 Pompeii. October 2023. Looking
north-east towards entrance doorway. Photo courtesy of Klaus Heese.

HGE28 Pompeii. May 2006. Looking north-east towards entrance doorway.
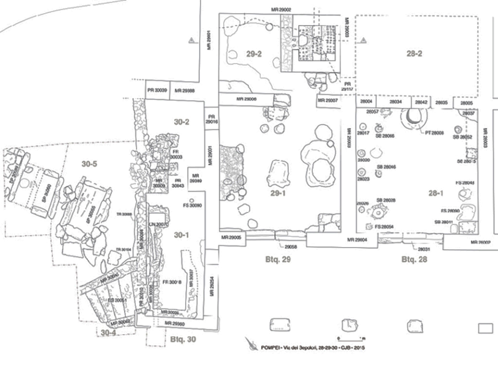
Plan of the potter's workshop (shops N28-N30) and
burials (1:50th). G. Chapelin, B. Lemaire – CJB/EFR/CNRS -
CC BY-NC-ND 4.0
Plan de l’atelier de potier (boutiques N28-N30) et
des sépultures (1 : 50e). G. Chapelin, B. Lemaire – CJB/EFR/CNRS - CC BY-NC-ND
4.0
See Pompéi, Porta Ercolano : organisation, gestion et transformations d’une zone suburbaine : Campagne 2015, fig. 15. CEFR 1581

HGE28 Pompeii. May 2006. North side of shop.

HGE28 Pompeii. October 2023. Looking towards east side of shop. Photo
courtesy of Klaus Heese.

HGE28 Pompeii. May 2006. South side of shop.

Pompeii. May 2006. Outside HGE28 looking south along colonnade.
Laetitia Cavassa, Bastien Lemaire, Guilhem Chapelin et
Aline Lacombe
Publication en
libre accès. © École française de Rome. CEFR 1279
1 Ce programme
de recherche sur la production céramique à Pompéi s’intéresse à la zone de la
Porte d’Herculanum, située immédiatement à l’extérieur des murs de la colonie
et plus particulièrement aux boutiques auxquelles on accédait depuis un
portique situé le long de la via dei Sepolcri
(fig. 1). Cet édifice couvert long de 85 m desservait une quinzaine
de boutiques bâties sur le même modèle : 2 pièces, deux étages.
L’avant-dernière de la structure, la n. 29, identifiée comme ayant abrité un
atelier de potier, par la présence d’un four, a été la première étape de notre
recherche.

Fig. 1 - Plan
des boutiques situées le long de la via dei sepolcri.
D’après Van
der Poel 1983.
2 Les deux
premières campagnes nous ont permis d’identifier la production de l’atelier
(Note 1) et de dresser un premier schéma chronologique depuis la fondation de
la boutique jusqu’à l’éruption du Vésuve en 79 de notre ère (Note 2).
Note 1.
Cavassa et alii 2013.
Note 2.
Cavassa et alii 2014.
3 La campagne
2014 s’est concentrée sur le dégagement de deux boutiques mitoyennes à la
n. 29. En reprenant l’ensemble de la documentation bibliographique et
archéologique à disposition, nos recherches ont porté sur les boutiques
n. 28 et 30, situées respectivement à l’est et l’ouest de la n. 29.
L’intérêt d’étudier et fouiller ces nouvelles boutiques résidait dans le fait
qu’elles sont mitoyennes de la n. 29, et surtout qu’il existait des
communications internes entre celles-ci, faisant d’elles un ensemble cohérent
et nous laissant penser qu’il s’agissait d’un seul atelier de potier. De plus,
à l’issue des deux campagnes de fouilles 2012 et 2013 concentrées sur la
boutique 29 et une partie du portique, nous avions quelques éléments concernant
l’activité d’un atelier de potier (vases en phase de séchage, four, vases
surcuits) mais plusieurs éléments correspondant aux diverses phases de la
chaîne opératoire étaient manquants. C’est pourquoi la campagne 2014 s’est
concentrée sur les boutiques mitoyennes. Les liens évidents de communication
entre les différentes boutiques nous faisaient supposer une continuité dans
l’activité que nous devions vérifier. De plus, concernant la boutique 30,
plusieurs sources (Note 3) mentionnaient la présence d’un second four non
entièrement dégagé lors des fouilles du XIXe siècle, dont il ne subsitait plus la moindre trace suite à
l’accumulation de déblais dans ce secteur.
Note 3. Breton
1855, p. 234-235 et Fiorelli 1863, p. 361-362.
4 Elle a été
dégagée entre le 15 octobre et le 11 novembre 1838. Les données
fournies par les journaux de fouilles sont minces. Aucune information précise
concernant les découvertes dans cette boutique ne transparaît. Nos travaux sur
le terrain ont donc permis de redécouvrir cet édifice. Après avoir enlevé les
niveaux modernes, résultats de l’accumulation de terre depuis la découverte de
la boutique en 1838, nous sommes directement arrivés sur les niveaux antiques.
5 Cette
boutique, tout comme la majorité des structures appartenant au portique, est
composée d’une première pièce qui permettait d’accéder à une seconde. La
première pièce, appelée 28-1, mesure 5,10 m de large sur 5,20 m de
long et on y accédait du côté sud en franchissant un seuil de 2,70 m de
large.
6 La pièce
28-2 a été bouchée (fig. 2), probablement lors des fouilles du
XIXe siècle, afin de retenir les déblais et les lapilli
et n’a donc pas pu être étudiée lors de cette campagne.

Fig. 2 - Bouchage
de la pièce 28-2.
Cliché B.
Lemaire.
7 Le bouchage
laisse toutefois supposer que la pièce 28-2 serait « intacte » et
encore recouverte du matériel éruptif de 79 de notre ère.
8 Les
principaux résultats de la campagne sont illustrés par le dernier état de la
boutique 28. Il s’agit d’un sol et de structures associées encore en fonction
lors de l’éruption du Vésuve et dont le comblement est principalement composé
de lapilli et d’éléments de destruction (fig. 3). Ce sol (SL28010) est
fait d’une sorte de mortier gris présentant des inclusions de cailloutis. Dans
l’angle sud-est de la pièce, à l’instar des autres boutiques, une base
d’escalier (BS29011) a été découverte et permettait l’accès au premier étage.

Fig. 3 - Photo
zénithale de la pièce 28-1 après enlèvement des niveaux modernes.
Cliché B.
Lemaire.
9 Au centre et
en avant du mur de séparation des deux pièces, se trouve un puits ou une
citerne (PT28008) encore en fonction lors de l’éruption (Note 4). Les résultats
de cette première campagne ont également fait apparaître quatre tours de
potiers accompagnés de structures (que nous présentons sous forme d’ensembles
par soucis de clarté). Il s’agit de tours à axe fixe. De par
leur construction, ces quatre installations de tournage, se distinguent en deux
« types ».
Note 4. Ce
puits (ou citerne) est localisé au même endroit que celui découvert dans la
boutique voisine n. 29 qui n’était plus en activité lors du dernier état
de l’atelier.
10 Le premier
« type » de tour appartient au premier ensemble (ENS28001). Il s’agit
du seul exemplaire représenté dans cet atelier. Cette installation est composée
d’un tour de potier, un fond d’amphore (Note 5) et une fosse. Il est situé dans
l’angle sud-ouest de la pièce 28-1, directement à gauche en entrant dans la
boutique (fig. 4).
Note 5. Le
fond d’amphore est directement situé à l’ouest du tour. L’association d’un fond
d’amphore taillé et d’un tour de potier est assez fréquente. Il pourrait s’agir
de réceptacle destiné à recueillir de l’argile ou de l’eau.

Fig. 4 - Photo
zénithale du tour SB28028.
Cliché B.
Lemaire.
11 Le tour
SB28028 est représenté par une fosse circulaire (44 à 46 cm de diamètre,
profonde de 25 à 28 cm) avec un trou d’axe en son centre. Sur sa moitié
nord (entre 12 et 24 cm de largeur), la fosse du tour est bâtie avec des
fragments de tegulae et quelques éléments en basalte,
liés au mortier, lissé sur la face interne de la construction. Cette
particularité pourrait être interprétée comme la zone où s’asseyait le potier
pour tourner. C’est en effet l’une des hypothèses avancées par les archéologues
ayant fouillé le site de la Boissière-École dans les Yvelines. Les tours
découverts sur ce site sont assez similaires (bien que de plus grandes
dimensions) et présentent une partie maçonnée interprétée comme le siège du potie (Note 6).
Note 6. Dufaÿ – Barat – Raux
1997, p. 75.
12 Au fond de
la fosse, autour du négatif central ayant accueilli l’axe du tour, des
fragments de vases crus et de déchets de tournage ont été découverts,
accompagnés de rares fragments de céramiques cuites (fig. 5). Le négatif
observé au centre de la structure (14 x 14 cm de largeur et
46 cm de profondeur) recevait l’axe du tour fait de bois, de section
quadrangulaire, et donc fixe.

Fig. 5 - Détail
du tour avec les fragments de vases crus.
Cliché B.
Lemaire.
13 Les trois
autres ensembles (ENS28002, ENS28003 et ENS28004) correspondent à trois tours
de potiers de « type » légèrement différent. Chaque tour est
constitué d’une fosse matérialisée par une panse d’amphore italique taillée aux
deux extrémités, installée dans le sol, et au centre de laquelle se trouve un
négatif plus profond ayant accueilli l’axe du tour (fig. 6). Ce dernier,
comme le type précédemment présenté, est également fixe et de section
quadrangulaire.

Fig. 6 - Photo
zénithale du 2e type de tour.
Cliché B.
Lemaire.
14 À proximité
immédiate du tour appartenant à l’ensemble ENS28002 se trouvent deux fonds
d’amphores percés. Peut-on y voir des récipients permettant de stocker l’argile
du potier ?
15 Le
troisième ensemble, ENS28003, est composé du tour, d’un fond d’amphore non
percé, et d’une amphore crétoise brisée et recouverte d’une importante couche
d’argile, lavée et épurée, prête à être utilisée par le potier.
16 Le
quatrième ensemble, ENS28004, se trouve dans l’angle nord-est de la pièce et
est constitué du tour de potier seul. Aucun fond d’amphore n’a été mis au jour.
En revanche, il se trouve à quelques dizaines de centimètres d’un important
amas de vases crus (d’environ 70 cm est-ouest sur 50 cm nord-sud),
composé de fragments décorés et engobés (fig. 7), dont la forme est
identique à celle des vases crus mis au jour lors de la campagne 2012 dans la
boutique 29.

Fig. 7 - Photo
de détail des vases crus en phase de séchage mis au jour dans l’angle nord-est
de la pièce 28-1.
Cliché L.
Cavassa.
17 Enfin, le long
du mur est de la pièce 28-1 (MR28003), entre la base d’escalier BS28011 et le
mur nord MR28005, une trace longiligne de 4,62 m dans l’enduit, ainsi que
des traces de fixation laissent penser qu’il existait une ou plusieurs planches
alignées qui formeraient une étagère à 50 cm au-dessus du niveau du sol.
18 Cette pièce
28, laissée quasi intacte par les fouilleurs du XIXe siècle, se révèle en
fait être la salle de travail de cet atelier de potier, illustrée entre autre par les quatre tours de potiers, les vases crus,
finis, engobés et décorés, en train de sécher au moment où le Vésuve est entré
en éruption.
Laetitia Cavassa, Bastien Lemaire, Guilhem Chapelin et Aline Lacombe, « Pompéi. L’atelier de potier de la via dei
Sepolcri,
28-30 », Chronique
des activités archéologiques de l’École française de Rome, https://journals.openedition.org/cefr/1279
Sandra Zanella, Laetitia Cavassa, Nicolas Laubry, Nicolas
Monteix et Bastien Lemaire
Publication en
libre accès. © École française de Rome. CEFR 1581
33 La fouille
et l’enregistrement de certains éléments déjà découverts l’année précédente ont
été réalisés. Un sondage au sud-ouest du puits a été ouvert ; il a permis
de documenter l’installation du dernier niveau de sol et d’observer les limites
d’une structure antérieure qui apparaissait déjà lors de la campagne précédente
(fig. 16).

Fig. 16 –
Puits et dernier niveau de sol visible dans la pièce 1 de la boutique 28.
Pris du sud.
B. Lemaire,
EFR/CJB.
Cette
structure, bien qu’endommagée dans sa partie occidentale par l’installation des
tours et des structures attenantes, présente une forme presque circulaire,
reconnue sur 1,28 m du nord au sud et 1,47 m d’est en ouest
(fig. 17).

Fig. 17 –
La structure circulaire.
Pris de l’est.
B. Lemaire,
EFR/CNRS.
Contre cette
structure, se trouve un remblai qui n’a pas été fouillé cette année. Observé
dans la limite du sondage, au sud et à l’est de la structure, il s’agit très
probablement d’un remblai permettant de niveler la zone. Il est constitué d’un
limon sableux gris clair présentant de nombreuses inclusions de fragments de
mortier, d’enduit et de cailloutis. Il a été observé sur l’ensemble du sondage
et quelques céramiques ont été prélevées. Il s’agit de fragments de vases crus,
pris dans une matrice argileuse brune, formant une poche de 10 cm d’est en
ouest et de 15 cm du nord au sud.
34 Dans
l’angle nord-est de la pièce 28.1, une partie des vases crus a été prélevée et
déposée afin d’être étudiée et de permettre d’observer le niveau sur lequel
reposaient ces éléments. Dans la partie sud de cet amas de céramiques crues
fragmentées, la couche qui sert d’interface avec le dernier sol de la boutique
a été mise en évidence. Il s’agit d’un niveau de limon brun identifié sur
quelques centimètres et pouvant peut-être correspondre à une sédimentation
issue du fonctionnement de l’atelier, en raison de sa localisation
(fig. 18).

Fig. 18 –
Niveau d’interface dans lequel reposaient les vases crus dans l’angle nord-est
de la pièce 28.1.
Pris du sud.
L. Cavassa,
EFR/CNRS.
Référence
électronique
Sandra
Zanella, Laetitia Cavassa, Nicolas Laubry, Nicolas Monteix et Bastien Lemaire,
« Pompéi, Porta Ercolano : organisation, gestion
et transformations d’une zone suburbaine », Chronique des activités
archéologiques de l’École française de Rome, https://journals.openedition.org/cefr/1581

HGE28 Pompeii. 2014. Bastien Lemaire photographs the
locations of potter’s wheels using a pole. Photo © Guilhem Chapelin.
According to Laetitia Cavassa, after removing the modern rubble, four circular cavities were unearthed, three of whose walls consisted of fragments of cut amphoras; these were the remains of the potter’s wheels. This was a major discovery, as it illustrated through archaeological remains what we already knew, but only with regard to frescoes. Among the rare representations from the Roman period illustrating potter’s wheels at work, two are mural paintings discovered in Pompeii. Now we have these Pompeian wheels. While these traces are fleeting, they indicate the location of the master turners as well as the how these wheels worked. We noted the presence of a central axis made of wood on which the turning wheel was placed. The entire chain of operation has now been illustrated, from the shaping of vases, unfired goblets, and the firing of vases in kilns.
See Laetitia Cavassa, 2019. Tracing Back the Potters of
Pompeii. Article in English
HGE28 Pompeii.
2014. Bastien Lemaire photographie les emplacements des tours de potiers à
l’aide d’une perche. Photo © Guilhem Chapelin.
Rapidement,
après avoir enlevé les déblais modernes, nous mettons au jour quatre cavités
circulaires dont la paroi est constituée, pour trois d’entre elles, par des
fragments d’amphores taillées : il s’agit des vestiges des tours de
potiers dont nous cherchions les emplacements. Nous les avons enfin trouvés.
La découverte
est de taille : elle vient illustrer par des traces archéologiques ce que nous
ne connaissions jusqu’alors que par des fresques. Parmi les rares
représentations d’époque romaine illustrant des potiers en train de travailler,
deux sont des peintures murales découvertes à Pompéi. Maintenant, nous avons
les tours pompéiens. Ces traces, bien que fugaces, indiquent la position des
maîtres-tourneurs ainsi que le fonctionnement de ces tours de potiers. On
constate la présence d’un axe central en bois sur lequel était placée la roue
du tour. Toute la chaîne opératoire est désormais illustrée, de la mise en
forme des vases, en passant par les gobelets crus, jusqu’à la cuisson des vases
dans les fours.
Voir Laetitia
Cavassa, 2019. Sur la trace des potiers de Pompéi. Article en
français

Rendition of how Pompeii’s potter’s wheels functioned, watercolour by Guilhem Chapelin.
Watercolour © Guilhem
Chapelin.
See Laetitia Cavassa, 2019. Tracing
Back the Potters of Pompeii. Article in English
Proposition de
restitution du fonctionnement des tours de potiers pompéiens. Aquarelle de Guilhem
Chapelin.
Aquarelle © Guilhem Chapelin.
Voir Laetitia
Cavassa, 2019. Sur la trace des potiers de Pompéi. Article en français